Gennep, Kalboerhof
Op de hoek van de Kalboerstraat en Touwslagersgroes bouwen we 14 levensloopbestendige woningen, twee appartementen en één gezamenlijke huiskamer. Het plan is mede ontstaan door een initiatief van CPO-ers (collectief particulier opdrachtgeverschap). Enkele jaren terug hebben zij zich verenigd in een collectief particulier opdrachtgeverschap. Samen met Destion ontwikkelden zij dit nieuwbouwproject volgens het principe van ‘Naoberschap’. De CPO-ers bouwen de 10 levensloopbestendige woningen. Destion verhuurt vier levensloopbestendige woningen, twee appartementen en de woonkamer.
Duurzaam wonen in naoberschap
Het idee hiervan is dat bewoners vlakbij elkaar wonen en naar elkaar omkijken, met behoud van zelfstandigheid en privacy. Dit concept biedt een veilige en sociale leefomgeving voor vitale 50-plussers, waarbij burenhulp, gemeenschapszin en zelfstandigheid hand in hand gaan. Dat wordt gestimuleerd door de groene opzet van het plan, met een gezamenlijke tuin (hof) in het midden. Er komt ook een gezamenlijke huiskamer die door alle bewoners gebruikt kan worden, met als doel om het onderlinge contact tussen de bewoners te bevorderen.
Zeer duurzame woningen, lagere energierekening
We bouwen zogenaamde 'BENG-woningen'. Deze gasloze woningen beschikken over een energielabel A++++ en dragen bij aan de doelstelling om in 2050 CO2 neutraal te zijn. Waarschijnlijk zorgt de hoge mate van energiezuinigheid in combinatie met zonnepanelen voor een lagere energierekening. Daardoor houden huurders mogelijk meer geld over voor andere levensbehoeften, zoals boodschappen en kleding.
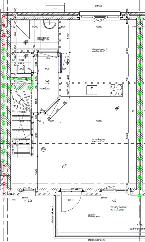
Informatie over de levensloopbestendige woningen
De vier levensloopbestendige woningen hebben een woonkamer, keuken, slaapkamer en badkamer op de begane grond. Er is een vaste trap naar een open ruimte; daar zou nog een extra slaapkamer gemaakt kunnen worden. De woningen hebben een voor- en achtertuin. Alle woningen beschikken over een berging.
Plattegrond woningen begane grond*
Plattegrond woningen verdieping*
*Aan deze plattegronden kunnen geen rechten worden ontleend.
Informatie over de appartementen
De twee appartementen (type maisonette) hebben twee verdiepingen. Een vaste trap verbindt de woonkamer met de slaapkamer. Er is geen lift. Elk appartement heeft een eigen balkonnetje en een eigen berging.
Plattegrond appartement verdieping*
*Aan deze plattegronden kunnen geen rechten ontleend worden.
Verhuur woningen en appartementen
Destion biedt al haar huurwoningen aan via Thuis in Limburg. Dat geldt dus ook voor deze woningen, die vanaf het voorjaar van 2026 in de verhuur gaan. Als alles volgens planning verloopt, zijn de woningen eind juni 2026 klaar.
Bezichtigingsmoment eind maart
Er zijn nog huurwoningen beschikbaar. De gasloze woningen, met energielabel A+++ zijn bestemd voor bewoners van 50 jaar en ouder en voor 1- en 2-persoonshuishoudens. Destion organiseert eind maart een bezichtigingsmoment. Mensen die geïnteresseerd zijn kunnen de woningen dan van binnen komen bekijken. Ook wordt er meer uitleg gegeven over het principe van ‘naoberschap’. Heeft u interesse om de woningen eind maart te bezichtigen? Stuur dan een e-mail naar wonen@destion.nl. Vermeld hierbij uw naam, adres en telefoonnummer, dan ontvangt u uiterlijk half maart een uitnodiging.
Ontwerp en realisatie
Weusten Liedenbaum architecten heeft de woningen ontworpen en bouwbedrijf van Oijen uit Boxmeer bouwt de woningen realiseren. De gezamenlijke huiskamer is bestemd voor de toekomstige bewoners van de Kalboerhof evenals de gezamenlijke groenvoorziening in het hart van het plangebied.
De bouw is in volle gang! Als alles volgens planning verloopt, worden de woningen rond de zomer van 2026 opgeleverd.
Voorbereidingen
Op 3 april j.l. hebben Destion en bouwbedrijf Van Oijen de aannemingsovereenkomst getekend voor de realisatie van 6 huurwoningen en een huiskamer in het project Kalboerhof in Gennep tegenover de tennisvelden. Het totale project bestaat uit 16 woningen, waarvan 10 koop en 6 huur. Enkele jaren terug hebben een aantal inwoners van Gennep zich verenigd in een collectief particulier opdrachtgeverschap en zij hebben samen met Destion het initiatief genomen voor deze ontwikkeling volgens het principe van een “knarrenhof". Het project heeft een groene opzet met een gezamenlijke tuin (hof) in het midden. Er komt ook een huiskamer die door alle bewoners gebruikt kan worden en dient om het contact tussen de bewoners te bevorderen. Bouwbedrijf van Oijen heeft inmiddels ook met alle 10 kopers een aannemingsovereenkomst gesloten.








.jpg)